Knesebeckstraße
Client Covivio
Location Berlin, DE
Area 760m² NF
Function Commerce, Office, Co-working (remodeling of ground floor, 2nd and 3rd floor)
Year 2019
Phases 1 – 8, in process
Partner Antonius Schimmelbusch GmbH (Interior Design), MTTR Architekten und Stadtplaner, (Architecture and Construction Management), Studio De Schutter (Lighting)
Project leader André Schmidt
Team Joris Fach, Franziska Glöckler
Photography Florian Lonicer
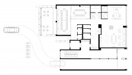
The German headquarters of the real estate company Covivio in Berlin was redesigned on three floors and expanded to the rear with a large conference room. All architectural and technical elements were adapted to contemporary, flexible work, with intermediate areas for community use as well as quiet zones.














© Florian Lonicer
© Florian Lonicer
© Florian Lonicer
© Florian Lonicer
© Florian Lonicer
© Florian Lonicer
© Florian Lonicer
© Florian Lonicer
© Florian Lonicer
© Florian Lonicer

Knesebeckstraße
Client Covivio
Location Berlin, DE
Area 760m² NF
Function Commerce, Office, Co-working (remodeling of ground floor, 2nd and 3rd floor)
Year 2019
Phases 1 – 8, in process
Partner Antonius Schimmelbusch GmbH (Interior Design), MTTR Architekten und Stadtplaner, (Architecture and Construction Management), Studio De Schutter (Lighting)
Project leader André Schmidt
Team Joris Fach, Franziska Glöckler
Photography Florian Lonicer








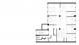
The German headquarters of the real estate company Covivio in Berlin was redesigned on three floors and expanded to the rear with a large conference room. All architectural and technical elements were adapted to contemporary, flexible work, with intermediate areas for community use as well as quiet zones.